+421 905 443 753
predaj@apartmanytale.sk
Úvod
Apartmány
Predaj
Lokalita
Ubytovanie a prenájom
Galéria
Plány
Kontakt
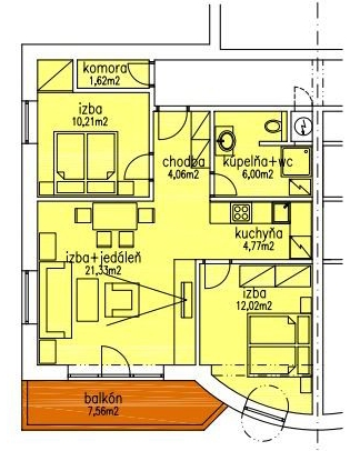
Apartmán č. 81
Popis
Užitková plocha (m2)
obytná plocha
58,39
komora
1,62
balkón
7,56
užitková plocha celkom
67,57
Pôdorys poschodia
Galéria
(% gallery name=apartmany %)
© 2011 apartmanytale.sk
Mapa webu
|
Kontakty